Descripción

Nave Diagonal es un complejo cerrado de naves industriales con formato modular, ubicado estratégicamente sobre la Autopista Rosario – Buenos Aires (KM 274), a solo 3 km de Avenida Circunvalación. Excelente conectividad hacia los principales corredores logísticos de la región.

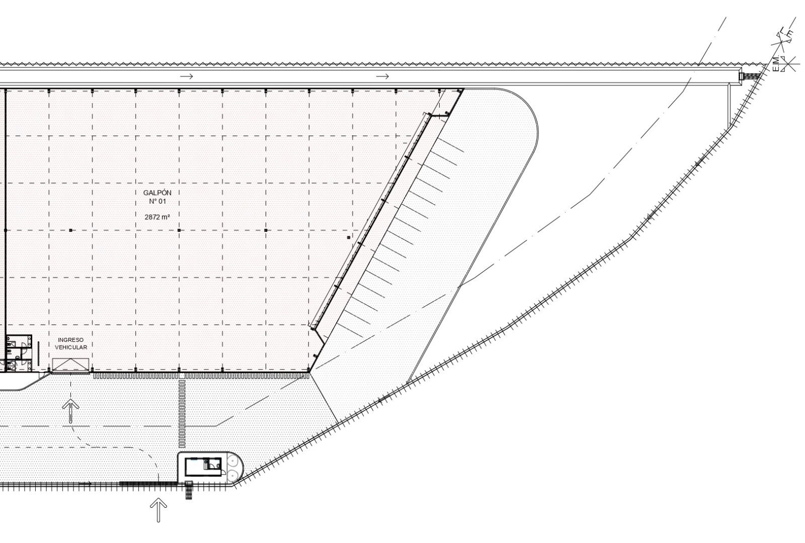
Superficie Cubierta: 2.872 m² | Superficie Descubierta: 1.340 m²
Esta es la nave principal y más representativa del complejo. Su gran diferencial es su amplio sector descubierto de 1.340 m², ideal para gran flujo de maniobras o estacionamiento, y un imponente frente integral de vidrio de 40 m x 5,75 m.

Detalles Técnicos y Constructivos:
Altura: Promedio de 9 metros libres.

Pisos: Suelo de hormigón de alta resistencia compuesto por 2 capas (H8 + H30).
Cubierta: Techo de chapa U-45 con excelente aislación térmica (lana de vidrio ISOVER).
Cerramientos: Muros compuestos por tabiques de hormigón rematados con chapa prepintada.
Seguridad: Predio cerrado con garita de seguridad y control de accesos estricto.

Condiciones Comerciales:
Plazo de entrega: 24 meses.
Financiación a medida: Opción de anticipo del 60% (IVA incluido) o esquema del 30% de adelanto + saldo en 24 cuotas (entregas en pesos ajustadas por índice CAC).

Ubicación

Ubicación

Propiedades relacionadas

Comparar listados

Comparar

Warning: Attempt to read property "hierarchical" on null in /home/u257966126/domains/arpini.com.ar/public_html/wp-includes/link-template.php on line 341

Warning: Attempt to read property "query_var" on null in /home/u257966126/domains/arpini.com.ar/public_html/wp-includes/link-template.php on line 351
Mateo Vallejos
  • Mateo Vallejos