Nave Logística AAA 10500 m² – José María Rosa 3509 BIS – Ubicación Estratégica

  • u$s52,500
  • 16580
  • m2

Descripción

Nave logística AAA en alquiler sobre Av. Circunvalación de Rosario (José María Rosa al 3500 BIS), esquina Cullen y Ugarte.

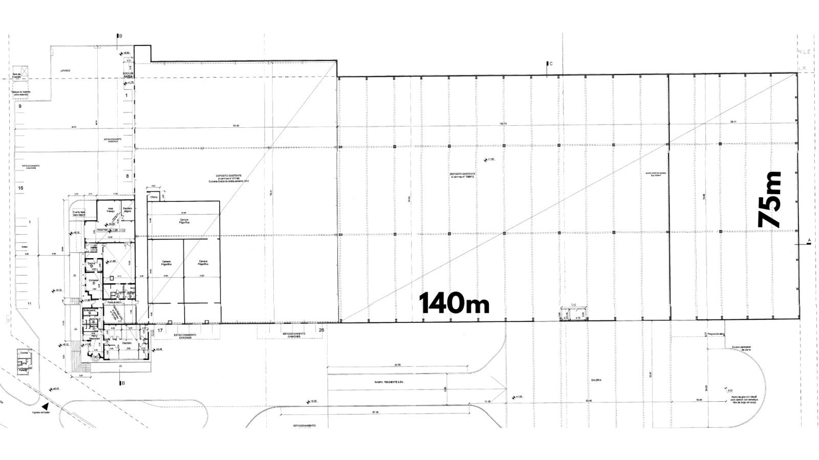
-Ubicada en una estratégica zona con acceso inmediato a la circunvalación, esta amplia nave de 15.500 m² de superficie cubierta se encuentra sobre un terreno de 34412 m², con una superficie total de 18.680 m², que incluye oficinas, playa de maniobra y áreas semicubiertas. La propiedad está completamente equipada para cumplir con los más altos estándares logísticos e industriales.

Características principales:
Superficie total: 18.680 m²
Superficie de naves: 10.500 m²
Distribución interna: 2 naves: (opción alquiler parcial)

Nave 2: 7.500 m²
Nave 3: 3.000 m²

Medidas: 140x75m

Infraestructura y servicios:
Techo: Techo a dos aguas con estructura de alma llena y chapas traslúcidas y aislante térmico
Piso de hormigón impecable
Sistema de extinción y detección de incendios con hidrantes.

Altura de las naves:
-Naves 2 y 3: 17 m máximos, altura mínima de 16.20 m

Servicios disponibles:
Agua
Electricidad trifásica
Teléfono, internet y red con conexión Alarma
Cloacas
Seguridad: Servicio de vigilancia 24 horas

Ubicación

Ubicación

Propiedades relacionadas

Comparar listados

Comparar

Warning: Attempt to read property "hierarchical" on null in /home/u257966126/domains/arpini.com.ar/public_html/wp-includes/link-template.php on line 341

Warning: Attempt to read property "query_var" on null in /home/u257966126/domains/arpini.com.ar/public_html/wp-includes/link-template.php on line 351
Arpini Inmuebles Corporativos
  • Arpini Inmuebles Corporativos