Descripción

Nave a estrenar en alquiler dentro de Park Empresario – Ubicación estratégica

Ubicada en la intersección de Uriburu y Av. Circunvalación, esta nave ofrece una excelente conectividad para logística.

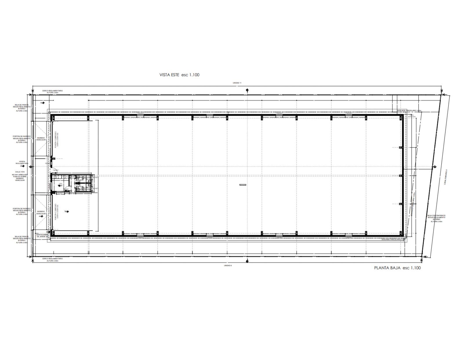
📐 Superficies:
✔ Cubierta: 1.345.52m² (61.50×21.76)
✔ Terreno: 1.928.92 m²

🔹 Características principales:
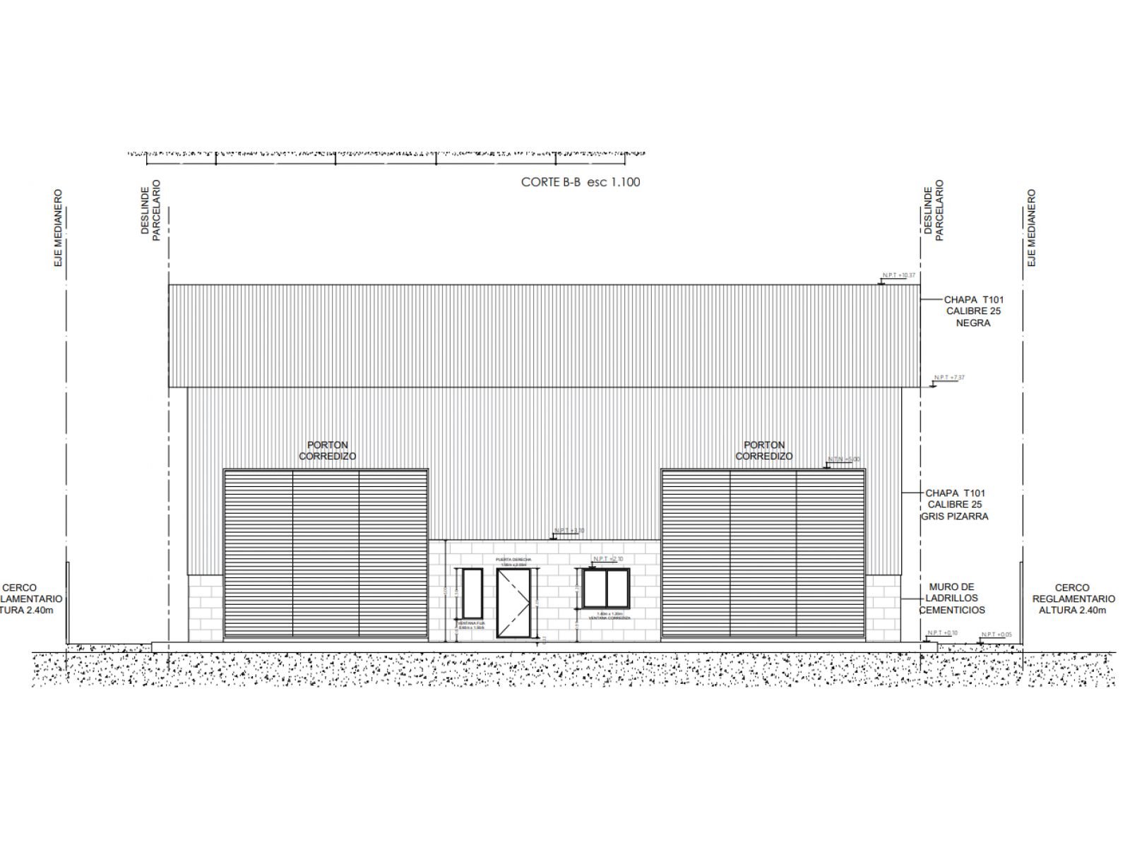
✔Altura de techos: 10 mts en la cumbre
✔Dos portones corredizos de 5 metros de alto por 6 metros de ancho
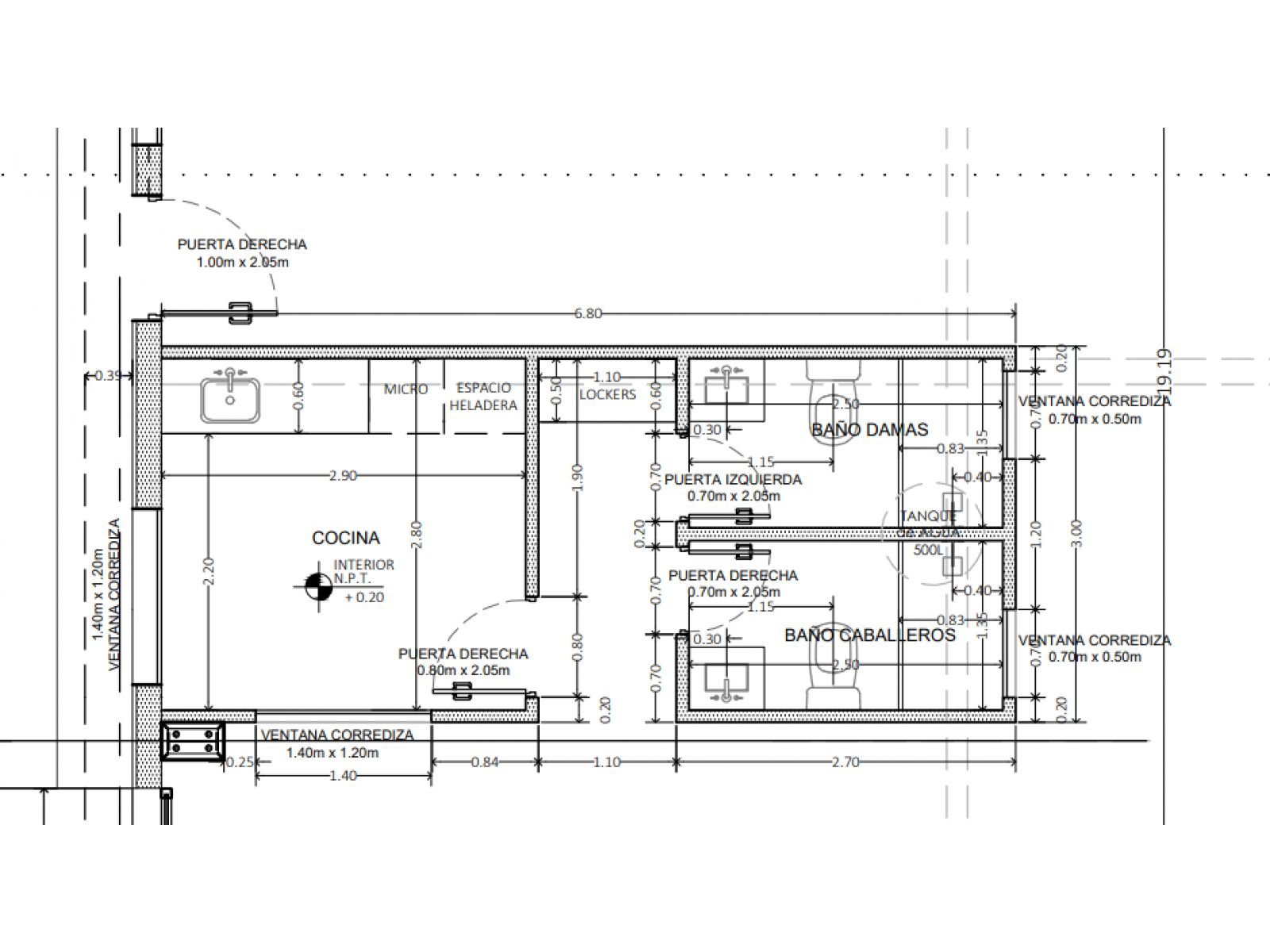
✔Cuenta con cocina y dos baños.
✔ Piso de hormigón en excelente estado – Ideal para depósito
✔ Estructura: Paredes de ladrillo hasta 2 metros, techo a dos aguas de chapa, cuenta con celosías en su laterales para mejor ventilación-
✔ Servicios: Agua de pozo, energía trifásica.
✔ Expensas: $350.000.

💰 Condiciones de alquiler:
✔ Contrato en dólares
✔ Valor inicial: USD 7.000 (oficial)
✔ Plazo: 36 meses
✔ Impuestos a cargo del inquilino

📍 Ubicación clave dentro de un parque empresario consolidado, con accesos inmejorables.

Ubicación

Ubicación

Comparar listados

Comparar

Warning: Attempt to read property "hierarchical" on null in /home/u257966126/domains/arpini.com.ar/public_html/wp-includes/link-template.php on line 341

Warning: Attempt to read property "query_var" on null in /home/u257966126/domains/arpini.com.ar/public_html/wp-includes/link-template.php on line 351
Arpini Inmuebles Corporativos
  • Arpini Inmuebles Corporativos