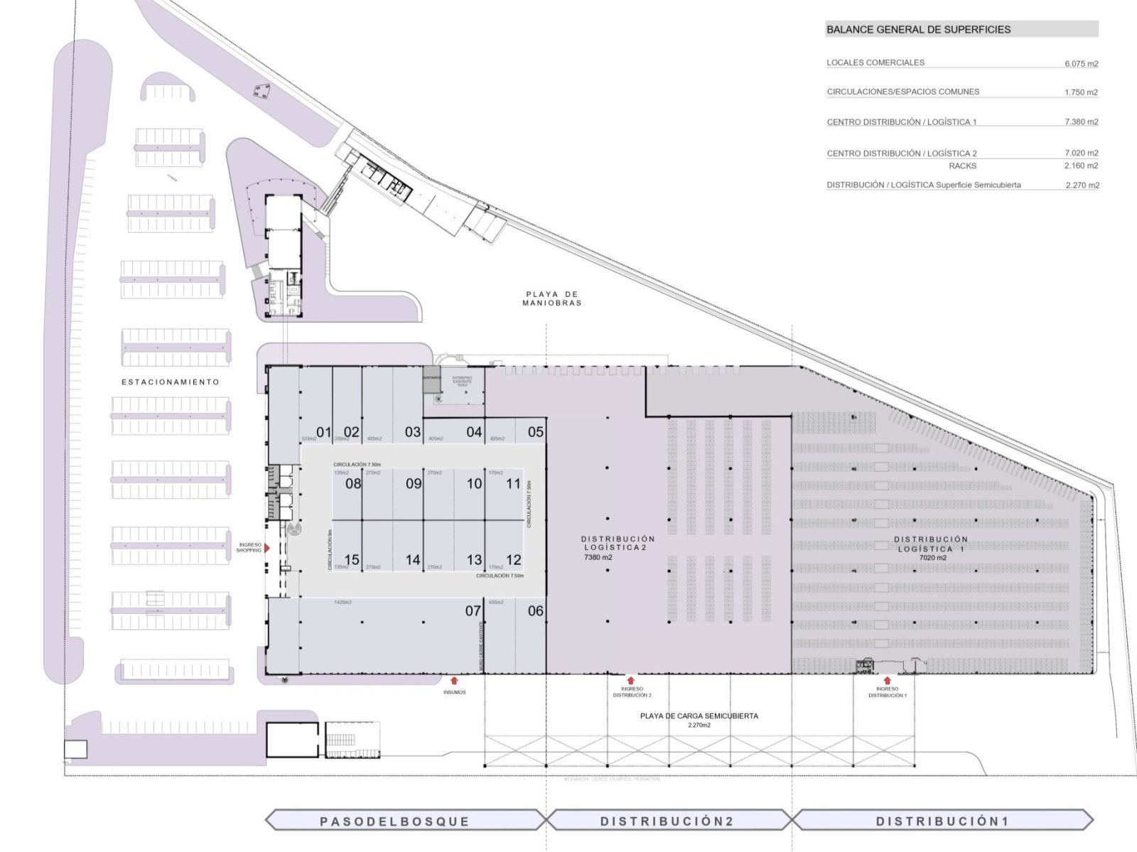
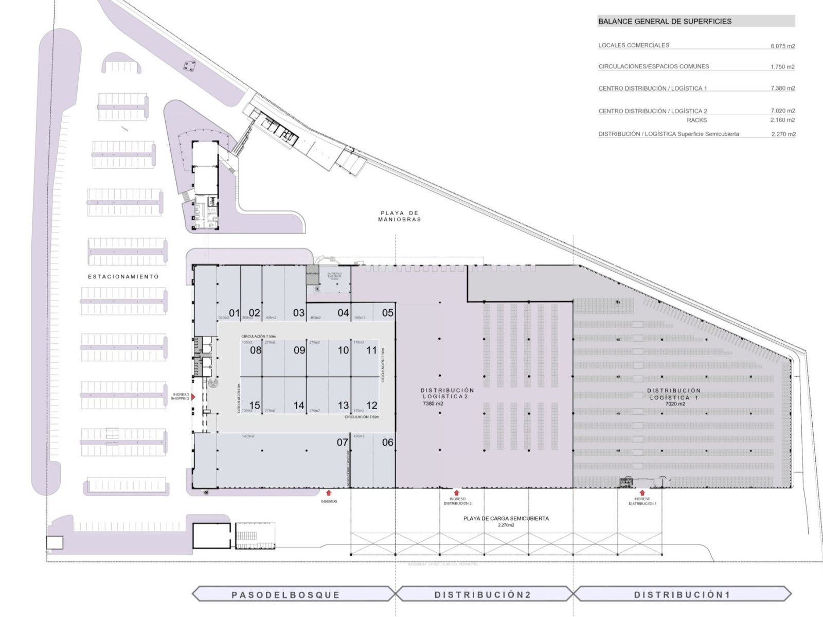
Nave Logística AAA en alquiler – 7020 m²
Presentamos una nave de categoría AAA, diseñada para operaciones logísticas de alto rendimiento con conectividad.
Altura de techos sectorizada en alturas de 9 m y 12 m, permitiendo máxima flexibilidad operativa.
Características principales:
-19 docks de carga equipados con plataformas de nivelación y una plataforma con función ascensor.
-Gran alero exterior, ideal para maniobras y operaciones de carga/descarga.
-Portones a nivel para ingreso y salida de transporte.
-Posibilidad de instalar racks en toda la superficie.
-Infraestructura preparada para cámaras de frío y congelados.
-Red completa de incendios con hidrantes y matafuegos.
-Áreas administrativas, baños y vestuarios.
-Garita de seguridad en el acceso, con barrera de control.
-Grupo electrógeno.
Ubicación estratégica:
-Conectada directamente con las Autopistas Buenos Aires – Rosario – Córdoba – Santa Fe y con el Puente Rosario – Victoria, esta nave se posiciona en un punto logístico privilegiado para distribución regional y nacional.
Ideal para centros logísticos, operadores 3PL, empresas industriales o cadenas de frío que requieran infraestructura de primer nivel.
Comparar listados
CompararPor favor ingrese su nombre de usuario o dirección de correo electrónico. Recibirá un enlace para crear una nueva contraseña por correo electrónico.