ALQUILER Nave logística a estrenar en el PIA – 1203 m² cubiertos sobre terreno de 5.000 m²
Ubicada en el Parque Industrial de Alvear (PIA), esta nave industrial de 1.136 m² cubiertos se desarrolla sobre un terreno de 5.000 m², con excelentes condiciones de accesibilidad y operatividad para actividades logísticas o industriales.
Características principales:
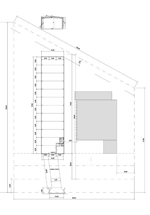
Medidas de la nave: 16, 70 m x 72 m
Estructura: Hierro reticulado con perfiles C
Cubierta: Chapa metálica con paneles translúcidos para iluminación natural
Paredes: Mampostería de block hasta 2 metros, y cerramiento superior en chapa
Altura libre: 9 metros en la cumbrera y 8 metros al apoyo de viga
Piso: Hormigón llaneado de 18 cm de espesor
Accesos:
Portón principal al frente con playa de hormigón llaneado
Portón lateral de servicio
Dos salidas de emergencia
Servicios y funcionalidad:
Baños: 3 (instalaciones sanitarias completas) 67m2
Playón de maniobras: 200 m²
Oficinas: No construidas, con posibilidad de adaptación según necesidad del locatario
Servicios:
AGUA
GAS
ELECTRICIDAD TRIFASICA
TELEFONO
INTERNET
CLOACA
Una oportunidad ideal para empresas que buscan una nave operativa a estrenar en el polo industrial más consolidado de la región.
Comparar listados
CompararPor favor ingrese su nombre de usuario o dirección de correo electrónico. Recibirá un enlace para crear una nueva contraseña por correo electrónico.